Bjórvettlingar
Höfundur: Handverkskúnst
Prjónaður vettlingur og bjórvettlingur úr DROPS Eskimo. Rendur og garðaprjón.
Stærð: S/M – M/L
Mál á bjórvettling:
Hæð: um 10-11 cm.
Ummál fyrir flösku: um 21–21 cm.
Lengd á stroffi: ca 13 cm.
Garn: Drops Eskimo (fæst í Handverkskúnst).
150 g litur 24, gulur
- 0 g litur 46, milligrár
Prjónar: Nr. 5,5 - eða þá stærð sem þarf til að 14 lykkjur og 27 umferðir með garðaprjóni verði 10 cm á breidd og 10 cm á hæð.
Upplýsingar fyrir mynstur: Garðaprjón (prjónað fram og til baka). Lykkjurnar eru prjónaðar slétt í öllum umferðum.
Útaukning (á við um hægri/vinstri vettling): Aukið út um 1 lykkju með því að slá 1 sinni upp á prjóninn. Í næstu umferð er uppslátturinn prjónaður snúinn svo að ekki myndist gat.
Úrtaka: Lykkjum er alltaf fækkað frá réttu.
Vettlingar:
Báðir vettlingarnir eru prjónaðir fram og til baka og saumaðir saman í lokin.
Vettlingarnir eru prjónaðir alveg eins óháð hvort prjónað er á hægri eða vinstri hönd.
Bjórvettlingur:
Fitjið upp 11–13 lykkjur á prjón 5,5 með milligráum. Stykkið er prjónað með garðaprjóni, 1. umferð = rétta. Prjónið 14 umferðir með milligráum, síðan eru prjónaðar 4 umferðir með gulum, 4 umferðir með milligráum, síðan er prjónað með gulum. Þegar stykkið mælist 13 cm eru fitjaðar upp 17 lykkjur í lok umferðar frá réttu = 28–30 lykkjur. Þegar stykkið mælist 20 cm eru fitjaðar upp 2 lykkjur í lok umferðar frá röngu fyrir þríhyrning (= botn). Fitjið upp 2 lykkjur í lok hverrar umferðar frá röngu alls 5 sinnum = 38–40 lykkjur. Prjónið 2 umferðir. Fellið síðan af 2 lykkjur í byrjun á hverri umferð frá réttu. Fellið af 2 lykkjur í hverri umferð frá réttu alls 5 sinnum = 28–30 lykkjur. Þegar stykkið mælist 34 cm fellið af fyrstu 17 lykkjurnar í byrjun á umferð frá röngu = 11–13 lykkjur. Haldið áfram fram og til baka þar til stykkið mælist 39 cm. Prjónið 4 umferðir með milligráum, 4 umferðir með gulum, síðan 14 umferðir með milligráum. Fellið laust af.
Frágangur:
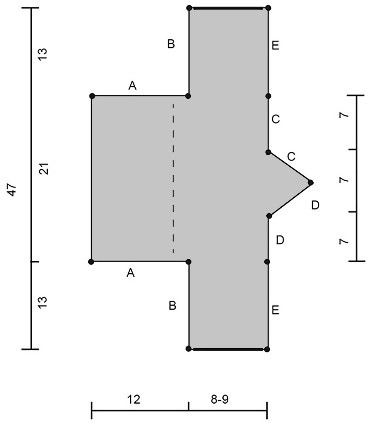
Sjá teikningu. Saumið A við A – saumið í ystu lykkjubogana svo að saumurinn verði flatur og brjótið uppá helminginn inn – sjá strikaða línu. Saumið B við B (= ofan á hönd), C við C (= önnur hlið á botni), D við D (= hin hlið á botni) og E við E (= undir hönd).
Vettlingur:
Stykkið er prjónað fram og til baka og saumað saman í lokin.
Fitjið upp 27–29 lykkjur á sokkaprjón 5,5 með milligráum. Stykkið er prjónað með garðaprjóni, 1. umferð = rétta. Prjónið 14 umferðir með milligráum, síðan 4 umferðir með gulum, 4 umferðir með milligráum, síðan er prjónað með gulum. Þegar stykkið mælist 13 cm er sett 1 prjónamerki í 14.–15. lykkju (= op fyrir þumal). HÉÐAN ER NÚ MÆLT.
Nú eru 13–14 lykkjur ofan á hönd og 13–14 lykkjur innan í hönd. Haldið svona áfram þar til stykkið mælist 3 cm frá prjónamerki.
Aukið nú út fyrir op fyrir þumal með því að auka út um 1 lykkju hvoru megin við lykkju með prjónamerki í - lesið ÚTAUKNING. Aukið svona út í annarri hverri umferð alls 4 sinnum = 35–37 lykkjur. Prjónið síðan áfram þar til stykkið mælist 6 cm. Setjið 9 lykkjur fyrir þumal á 1 band, haldið áfram fram og til baka og fitjið jafnframt upp 1 nýja lykkju á prjóninn yfir lykkjurnar á bandi = 27–29 lykkjur. Prjónið síðan áfram þar til stykkið mælist 15–16 cm frá prjónamerki (nú eru eftir ca 3 cm til loka, mátið e.t.v. vettlinginn og prjónið að óskaðri lengd). Í næstu umferð frá réttu er fækkað um 7–9 lykkjur jafnt yfir – lesið næstu umferð frá réttu og fækkið um 7–9 lykkjur jafnt yfir – lesið ÚRTAKA = 20 lykkjur. Fellið af 4 lykkjur 1 sinni = 16 lykkjur, síðan eru prjónaðar 2 og 2 lykkjur slétt saman alls 2 sinnum = 4 lykkjur á prjóni. Stykkið mælist nú ca. 18–19 cm frá prjónamerki. Klippið frá og dragið bandið í gegnum þær lykkjur sem eftir eru, herðið að og festið vel. Saumið hliðarsaum á vettling í ystu lykkjubogana, svo að saumurinn verði ekki þykkur.
Þumall:
Setjið 9 lykkjurnar af bandi á prjón 5,5, prjónið að auki upp 1 lykkju aftan við þumal = 10 lykkjur. Prjónið garðaprjón með gulum. Þegar þumallinn mælist ca 6 cm eru allar lykkjur prjónaðar slétt saman 2 og 2 = 5 lykkjur. Klippið frá og þræðið bandið í gegnum allar lykkjur sem eftir eru, herðið að og festið vel. Saumið hliðarsaum á þumli í ystu lykkjubogana svo að saumurinn verði ekki þykkur.

Prjónakveðja,
mæðgurnar í Handverkskúnst
